Советы профессионалов: Как создать стильный дизайн проект помещения и удивить гостей

Каждый человек желает, чтобы его дом или офис был уютным и привлекательным. Для того чтобы создать уютную обстановку, необходимо разработать дизайн проект помещения. Для этого важно понимать, что дизайн проект — это комплекс проектных исследований, которые направленны на создание уникальной и комфортной атмосферы в помещении.
Содержание статьи:


Дизайн проект помещения, помимо эстетических качеств, также нацелен на оптимизацию использования пространства. Современные дизайнеры помещений учитывают каждую деталь, чтобы сделать помещение максимально функциональным. Привлекательный внешний вид не должен противоречить практичности и удобству использования помещения.
Использование правильного цветового спектра и расположение мебели, декора и аксессуаров играет ключевую роль в создании интерьера, который будет отражать личность владельца помещения. Поэтому каждый проект разрабатывается индивидуально, учитывая все пожелания и потребности клиента. Ведь уникальный дизайн проект помещения создаст атмосферу гармонии и уюта, в которой каждый будет себя чувствовать комфортно.

Изучение задачи и пожеланий клиента:
Ключевым этапом в создании успешного дизайн проекта помещения является изучение задачи и пожеланий клиента. На этом этапе дизайнер получает информацию о типе помещения, его назначении, количестве жильцов/работников/посетителей и других важных параметрах.



Кроме того, клиент сообщает свои эстетические предпочтения, описывает сильные и слабые стороны текущего дизайна, высказывает свои идеи и ожидания от нового проекта. Важно, чтобы дизайнер внимательно выслушал все требования клиента и задал дополнительные вопросы, чтобы понять их полностью.

Изучение задачи и пожеланий клиента является важным этапом проекта, который в последующем поможет дизайнеру создать уникальное и оптимальное решение для каждого конкретного помещения. Важно не только слушать, но и уметь услышать клиента и донести до него свои собственные идеи и предложения.
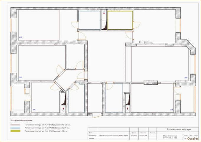
Создание эскизов и макетов
Первый этап работы над дизайн проектом помещения — это создание эскизов и макетов. В этой части процесса дизайнер знакомится с требованиями заказчика, анализирует особенности помещения и определяет функциональные зоны. Он также изучает основные цветовые палитры, архитектурные элементы и материалы, которые будут использованы в интерьере.
Читайте также: Идеальный дизайн интерьера: как создать проект бытовых помещений, который заставит гости завидовать
В наше время, когда технологии развиваются с невероятной скоростью, многие люди начинают задумываться о создании комфортного и уютного дома для своей.
Для создания эскизов и макетов дизайнер может использовать различные инструменты — от карандаша и бумаги до компьютерных программ для 3D-моделирования. Но независимо от выбранного подхода, цель остается одна — нарисовать или создать визуальный образ будущего интерьера, учитывая все требования заказчика.
Отличительной особенностью создания эскизов и макетов является их предварительный характер. В данной стадии работы нет необходимости углубляться в детали, важнее всего — передать общую идею, оттенок и функциональность будущего интерьера. Именно в этом ключевой момент: благодаря эскизам и макетам заказчик получает представление о том, какие изменения будут внесены в его помещение и сможет принять решение о дальнейшей работе над проектом.
Выбор цветовых решений
Цветовая гамма помещения имеет огромное значение, она может оказывать влияние на настроение и эмоции людей, на скорость и качество работы, на общий вид комнаты. Поэтому выбор цветовых решений следует обдумать до начала ремонта.
При выборе цветовой гаммы следует учитывать несколько факторов: размер и форму помещения, сочетаемость цветов, цветовые предпочтения клиента, освещение и функциональное назначение комнаты.
- Размер и форма комнаты. Светлые тона помогут визуально увеличить пространство, цветные или темные, наоборот, вызовут ощущение утесненности.
- Сочетаемость цветов. Цвета можно комбинировать, но необходимо следить за тем, чтобы они не конфликтовали между собой. Сочетание цветов, близких по тональности, может создать эффект гармонии и спокойствия.
- Цветовые предпочтения клиента. Нельзя забывать о том, что цветовая гамма должна отвечать вкусам и предпочтениям клиента. Обязательно узнавайте у него, какие цвета ему нравятся и какие нет.
- Освещение. Световые условия помещения сильно влияют на цветовые решения. В темное помещение лучше выбрать светлые цвета, а в солнечном — насыщенные.
- Функциональное назначение комнаты. В зависимости от функционального назначения комнаты выбираются разные цвета. Например, в спальне лучше использовать спокойные и нейтральные тона, а в офисе — бодрящие и стимулирующие.
Выбор цветовых решений — это тонкое искусство, которое требует внимания к многим нюансам. Однако, правильно подобранная цветовая гамма может стать ключом к созданию уютной и гармоничной атмосферы в помещении.
Оформление интерьера
Цветовые решения
Выбор цвета является одним из важных этапов дизайна интерьера. Цвет стен, потолка, пола, мебели и аксессуаров должен быть гармонично подобран и соответствовать общей концепции помещения. Так, например, красный цвет создает эмоциональный заряд, зеленый — успокаивает, синий — расширяет пространство, желтый — придает энергию и оптимизм.
Кроме того, цветовые решения могут использоваться для визуального увеличения или уменьшения пространства. Так, светлые тона расширяют помещение, темные наоборот — уменьшают.
Освещение
Правильно подобранные и размещенные источники света создадут уют и комфорт в помещении. Основным источником света является потолочный светильник, но также желательно использовать настольную лампу, бра или напольный светильник.

Важно учитывать и функциональность помещения. Так, в спальне желательно использовать теплый и мягкий свет, а в рабочей зоне — яркий и функциональный.
Мебель и аксессуары
Правильно подобранная мебель является ключевым элементом интерьера. Она должна отвечать функциональности помещения, быть удобной и комфортной в использовании. Также важно подобрать аксессуары — картины, зеркала, текстиль, которые дополнят общую концепцию помещения и создадут атмосферу.
Но не стоит забывать о пространстве. Важно не перегружать помещение мебелью и аксессуарами, оставляя свободное пространство для движения и визуального увеличения пространства.
Выбор мебели и аксессуаров
При выборе мебели и аксессуаров для дизайна помещения необходимо учитывать не только свой вкус, но и функциональность предметов, особенности планировки и размеры помещения. Важно подобрать такую мебель, которая не только будет выглядеть красиво, но и максимально использовать пространство.

Размеры мебели и ее расположение имеют большое значение. Например, для небольшой комнаты стоит выбирать компактные предметы, которые не загромождают пространство и не создают ощущение тесноты. Также необходимо учитывать функциональность: кресла и диваны должны быть удобными, столики — практичными и функциональными.
Выбирая аксессуары, такие как картины, зеркала, подсвечники и другие декоративные элементы, важно помнить о стиле и цветовой гамме помещения. Аксессуары должны гармонично дополнять дизайн и не являться неуклюжим или неуместным дополнением.

- Столики, тумбы и полки должны соответствовать функциональным требованиям и не занимать много места;
- Кухонная мебель должна быть простой и удобной в использовании, а также соответствовать стилю кухни;
- В гостиной стоит установить удобный диван или кресло, а также выбрать стильное и практичное кресло-кровать.
Выбор мебели и аксессуаров для дизайна помещения — это творческий процесс, который требует сочетания практичности, стиля и внимания к деталям. Каждый элемент должен украшать общую композицию помещения, а также быть функциональным и удобным в использовании.
Реализация дизайн проекта
После того, как был утвержден дизайн проект помещения, начинается его реализация. Это может занять от нескольких дней до нескольких месяцев в зависимости от объема работ. Главная задача на этом этапе — превратить проект в реальность, чтобы все элементы интерьера встали на свои места так, как было задумано проектировщиком.
Первым шагом в реализации дизайн проекта является закупка всех необходимых материалов и мебели. Затем начинается процесс отделки и установки мебели. Важно следить за каждым этапом, чтобы довести работу до конца и не допустить недоработок. В процессе работы могут возникнуть изменения в начальном проекте, и дизайнер должен учитывать их и привнести улучшения.
После окончания реализации дизайн проекта производится финальная оценка работы. Дизайнер и заказчик осматривают помещение, проверяют соответствие с проектом и доводят до ума всё, что требуется. Если есть замечания, дизайнер исправляет их. И только после того, как все работы закончены и результат стал полностью удовлетворительным, дизайнер может признаться в успешной реализации дизайн проекта помещения.






