10 советов по планированию дизайна помещения, которые сделают ваш дом уютным и стильным

Введение
При застройке и ремонте помещений каждый владелец стремится создать уникальное и комфортное пространство. Чтобы достичь желаемого результата, необходимо тщательно спланировать дизайн интерьера. Правильная организация пространства поможет создать атмосферу, которая подойдет для жизни, работы или любых других нужд.
Зачем нужно планировать дизайн помещения?
Планирование интерьера — эффективный способ сделать помещение более функциональным и удобным для жизни. Оно позволяет максимально использовать площадь, обеспечить комфорт и эстетику, учитывая потребности владельцев.
Процесс планирования дизайна помещения
Планирование дизайна помещения начинается с рассмотрения основных факторов: целей использования помещения, личных предпочтений клиента, особенностей архитектуры и технических возможностей помещения. Затем составляется концепция дизайна, включающая в себя выбор цветовых решений, материалов, мебели и декора. В итоге создается детальный план, который поможет превратить задуманное в реальность.
Для достижения оптимального результата необходимо обратиться к профессиональным дизайнерам, которые помогут воплотить все ваши идеи в жизнь!
Оценка пространства
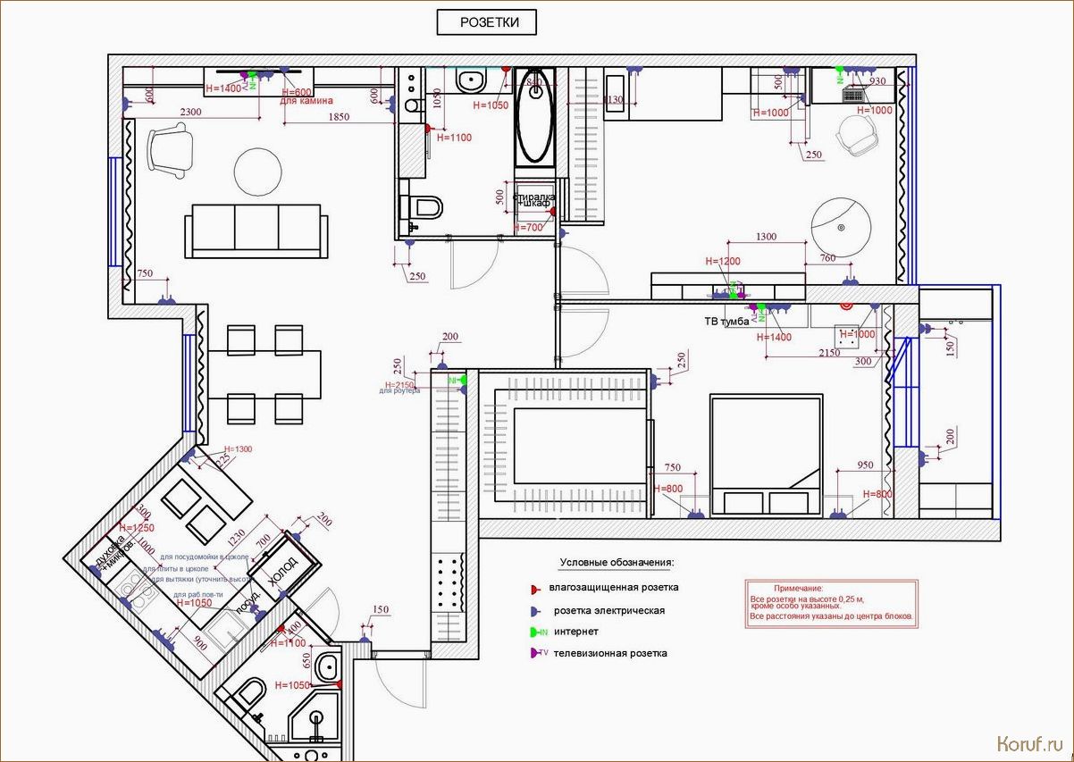
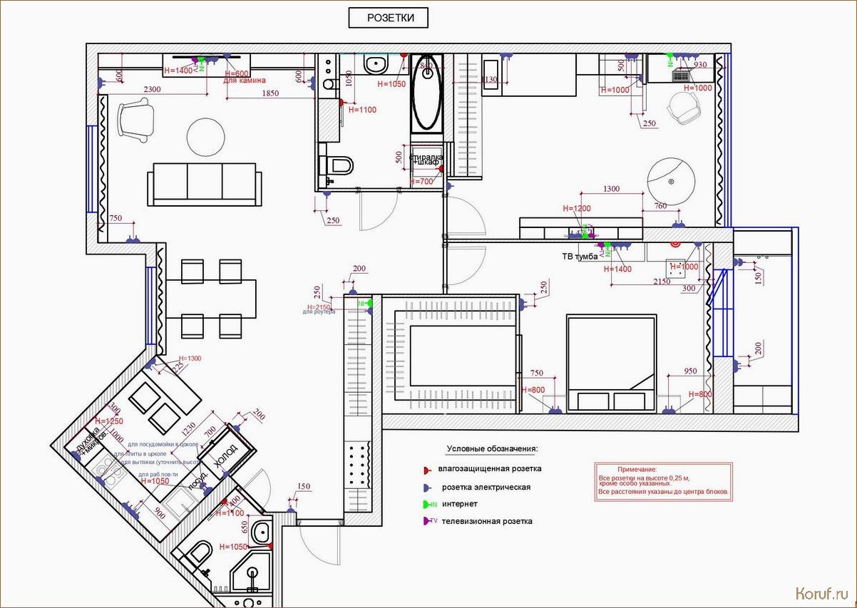
Первым шагом при планировании дизайна помещения является оценка пространства. Это важно, чтобы определить максимальные возможности помещения и разработать дизайн, который будет соответствовать его потребностям.
Содержание статьи:
Оценка пространства включает в себя измерение размеров комнаты, высоты потолков, расположения окон и дверей, а также проводку для электрики и водопровода. Эти данные помогут определить, где расположить мебель, какой должна быть освещенность и какие цвета и материалы использовать в интерьере.
Также важно учитывать функциональность помещения. Например, кухня должна быть удобной для готовки пищи и хранения посуды, а спальня должна быть комфортной для отдыха. Поэтому, при оценке пространства необходимо учитывать предполагаемую функцию помещения и адаптировать дизайн под нее.
- Для успешной оценки пространства необходимо:
- Измерять размеры комнаты, высоту потолков, расположение окон и дверей.
- Учитывать функциональность помещения и адаптировать дизайн под нее.
- Определять проводку для электрики и водопровода.

В результате оценки пространства можно сформировать представление о том, каким должен быть идеальный дизайн помещения. Оценка пространства также поможет избежать ошибок в мебельном планировании и повысит комфортность использования помещения.
Определение стиля
Перед оформлением интерьера помещения необходимо определить стиль, который будет соответствовать его функциональной назначению и вкусам заказчика.

Важно выбрать стиль, который будет удобен и комфортен для проживания, работы и отдыха. Более того, выбранный стиль должен соответствовать общей концепции интерьера и гармонировать с цветовой гаммой и фактурой отделки.
Существует множество стилей, от классики до современности, и каждый из них имеет свои особенности и характерные черты. Например, классический стиль характеризуется изысканной мебелью с резными деталями, богатыми шторами и лепниной на потолке. Современный стиль, напротив, предпочитает простые и лаконичные формы, минимум деталей и яркие акценты в виде ярких подушек или абстрактных картин.

Важно помнить, что стиль выбирается не только по вкусу, но и в зависимости от назначения помещения и потребностей его обитателей.
Выбор цветовой гаммы
Выбор цветовой гаммы — это один из самых важных моментов при планировании дизайна помещения. Он может создать нужное настроение, подчеркнуть стиль интерьера и даже повлиять на настроение и эмоции людей, находящихся в данном пространстве.

Читайте также: 10 идей для создания стильного и функционального интерьера квартиры: советы от профессионалов дизайна помещений
В современном мире все большее количество людей стремится обустроить свою квартиру так, чтобы она была не только уютной и комфортной, но и.
При выборе цвета стоит учитывать различные факторы, такие как размер помещения, его функциональное назначение, освещение, архитектурные особенности и личные предпочтения заказчика. Также не стоит забывать о том, что цвета должны гармонично сочетаться между собой.
- Для небольших помещений лучше выбирать светлые или пастельные оттенки, которые визуально увеличивают пространство, так как отражают больше света.
- В гостиной или спальне можно использовать более насыщенные цвета, которые создадут уютную и комфортную атмосферу.
- Для офисных помещений часто выбирают спокойные и нейтральные тона, которые не отвлекают внимание.
- Если хочется добавить ярких акцентов, то можно использовать яркие подушки, картинки, столовые приборы или элементы декора, которые будут контрастировать с основными цветами.
Размещение мебели
Выбор мебели для помещения — это важный этап при планировании дизайна интерьера. Важно не только учесть функциональность каждого предмета, но и определить наилучшее место для его размещения.
Перед началом планирования необходимо определить, какой тип мебели будет использоваться в помещении. Размещение мебели зависит от ее назначения, а также от общего стиля интерьера.

- Для гостиной рекомендуется выбирать большие предметы мебели: диваны, кресла, журнальные столики. Хорошо продуманный дизайн помещения позволяет разместить несколько зон: для отдыха, просмотра телевизора и приема гостей.
- Для спальни следует выбирать мебель компактных размеров: кровать, тумбочки, комоды. Важно учитывать наличие гардеробной, чтобы определить, какой вид шкафов и размещение лучше подходят для данного помещения.
- Если речь идет о детской, основное внимание следует уделять безопасности и функциональности мебели. Хорошо размещенная мебель позволяет создать игровые, образовательные и функциональные зоны для ребенка.







